SPANISH
ENGLISH
INDUSTRIAL WHAREHOUSES AND OFFICES. Valencia, Cartagena, Alicante, Huelva, La Rioja, Portugal y Chile.
· Projects for Council license,
· Design of facilities projects
· Supervision of facilities execution.
HOME
PROJECTS
SERVICES
ABOUT US
CONTACT
SOME OF OUR BESTS PROJECTS:
Functions: design management (structures, facilities and interior/exterior finishes) , project management, cost management, supervision of facilities execution, documentary works: council license and “Industria” registration.
- SAFAMOTOR. S.A.
o BMW, SEAT AND SKODA DEALERSHIP. Workshop of vehicles. 2000m2. FUENGIROLA. MÁLAGA.
- HIPERWAGEN S.L.
o VOLKSWAGEN DEALERSHIP. Exhibition, sales and workshop of vehicles. 7000m2. P. I. EL VISO. MÁLAGA.
o SUPERCOR SUPERMARKET. Madrid, Marbella, Estepona, Coin, Torre del Mar, Oviedo, Torrevieja, La Corula, Colmenar Viejo, Murcia, Alicante y Málaga.
o SHOPS. Alicante, Mallorca and Barajas airports.
o OUTLET . Tenerife.
o BRICOR SUPERMAKET. Marineda City. A Coruña
o REFURBISHMENT OF CAR PARK AND FACADE PAINTING. SHOPPING CENTER HIPER ANDALUCÍA.
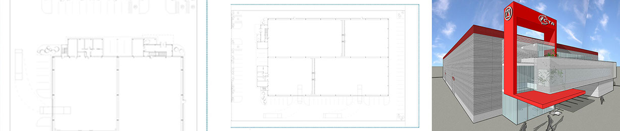
- CATERPILLAR. LA CANDELARIA SANTA ROSALIA-MAQUEDA. MALAGA.
o INDUSTRIAL WHAREHOUSES AND OFFICES. Valencia, Cartagena, Alicante, Huelva, La Rioja, Portugal y Chile.
- NEXT SHOPPING CENTER . CERRADO CALDERON. MALAGA.
- IKEA SHOPPING CENTER . CASTILLEJA DE LA CUESTA. SEVILLA.
- BAHIA AZUL SHOPPING CENTER AND PARKING. MALAGA.
- PLAZA MAYOR SHOPPING CENTER . MALAGA.
- HOTEL "CORTIJO BRAVO" AND BALLROOM. VELEZ MALAGA (SALSA NATURA S.L.).
- MONTANA RESTAURANT. MALAGA (CPS,INTEGRACION DE RECURSOS S.L.)
- SHOPPING CENTER SCREEN. STRUCTURE AND DESING. PLAZA EBOLI. MADRID.
- SHOPPING CENTER SCREEN. STRUCTURE AND DESIGN. EL ROSAL. PONFERRADA.
- PARKING AND HOUSING DEVELOPMENT. Design of facilities projects. ALHAURIN EL GRANDE. MALAGA.
- SOLINCA. SWIMMING POOLS AND SPA. MÁLAGA.
- RESIDENTIAL COMPLEX FOR CARE ASSISTANCE. Projects for Council license. TORREMOLINOS.
- RESIDENTIAL COMPLEX FOR CARE ASSISTANCE. Projects for Council license. CERRADO DE CALDERÓN. MÁLAGA.
Nuevo Concepto de Ingeniería, S.L. C/ Diego Vázquez Otero, 3, Oficina 9 29007 Málaga +34 952 07 05 27 +34 952 07 14 93 nci@ncingenieria.com