Nuevo Concepto de Ingeniería, S.L.       C/ Diego Vázquez Otero, 3, Oficina 9       29007       Málaga      +34 952 07 05 27       +34 952 07 14 93         nci@ncingenieria.com

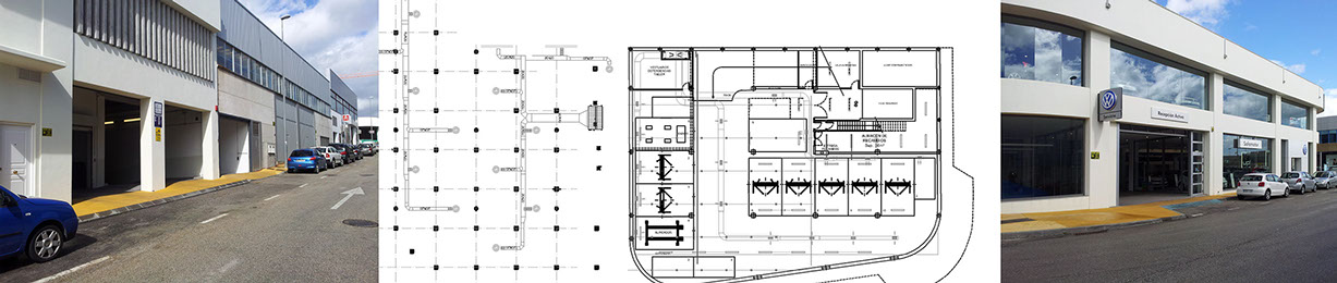
EDIFICIO DE 2500 m2 PARA EXPOSICION-VENTA Y TALLER DE VEHICULOS MARCA VOLKSWAGEN EN SAN PEDRO DE ALCANTARA. MALAGA. (SAFAMOTOR. S.A.)

• Proyecto adecuación

• Proyecto de actividad

• Dirección de obra

• Proyecto de cálculo y legalización de las instalaciones: instalación eléctrica, contraincendios, climatización, aire comprimido, fontanería y saneamiento.

• Registro industrial y puesta en servicio de las instalaciones en industria.

 

 

INICIO

- SAFAMOTOR. S.A.

o EDIFICIO EXPOSICION-VENTA Y TALLER DE VEHICULOS AUDI. SAN PEDRO DE ALCANTARA. 8000m2. MALAGA.

o EDIFICIO EXPOSICION-VENTA Y TALLER DE VEHICULOS MITSUBISHI, NISSAN Y AUDI. 5000m2. P. I. EL VISO. MALAGA.

o EDIFICIO EXPOSICION-VENTA Y TALLER DE VEHICULOS VOLKSWAGEN. 2500m2. SAN PEDRO DE ALCANTARA. MALAGA.

o EDIFICIO EXPOSICION-VENTA DE VEHICULOS. 2000m2. FUENGIROLA. MALAGA.

 

 

- CENTRO COMERCIAL HIPERWAGEN S.L.

o EDIFICIO DE 7000 m2 PARA EXPOSICION-VENTA Y TALLER DE VEHICULOS. 7000m2. P. I. EL VISO. MÁLAGA.

 

- EL CORTE INGLES S.A.

1.Proyecto de actividad e Instalaciones y Dirección Técnica ( Instalación Eléctrica, Contraincendios, Climatización, Fontanería y Saneamiento) de:

 

o  SUPERCOR  sitos en Madrid, Marbella, Estepona, Coin, Torre del Mar, Oviedo, Torrevieja, La Corula, Colmenar Viejo, Murcia, Alicante y Málaga.

 

o LOCALES COMERCIALES EL CORTE INGLES sitos en Aeropuertos de Alicante, Mallorca y Barajas.:

 

o CENTRO DE OPORTUNIDADES EL CORTE INGLES  sito en Tenerife.

 

2. Proyecto de Instalación Eléctrica de:

o BRICOR  sito en Complejo comercial Marineda City.  A Coruña

 

- PARQUE COMERCIAL BAHIA AZUL. MALAGA.

 

- CENTRO COMERCIAL PLAZA MAYOR. MALAGA.

 

- PROYECTO DE SOPORTACIÓN DE VIDEOPANTALLA EN EL CC EL ROSAL. PONFERRADA.

 

- PROYECTO DE REFORMA DE APARCAMIENTO Y PINTURA DE FACHADA EN HIPER ANDALUCÍA. MIJAS. MALAGA.

PROYECTOS

SERVICIOS

- CUNADO S.A.

o NAVES INDUSTRIALES para almacén y oficinas. Valencia, Cartagena, Alicante, Huelva, La Rioja, Portugal y Chile.

 

- APARCAMIENTO PÚBLICO Y URBANIZACION. ALHAURIN EL GRANDE. MALAGA.

 

- CENTRO COMERCIAL NEXT, CERRADO  CALDERON. MALAGA.

 

- HOTEL RURAL Y SALON DE CELEBRACIONES. VELEZ MALAGA (SALSA NATURA S.L.)

 

- CATERPILLAR. FINCA LA CANDELARIA SANTA ROSALIA-MAQUEDA. MALAGA.

 

1. Proyecto de actividad e Instalaciones y Dirección Técnica  ( Instalación Eléctrica, Contraincendios, Climatización, Fontanería y Saneamiento) de casa comedor, aulas de formación, laboratorio y gradas de exhibición, edificio de demostraciones (MPEX)

 

2.Cálculo, dirección y estudio detalle de estructura metálica de gradas de exhibición.

 

- PROYECTO DE ACTIVIDAD DE CONJUNTO RESIDENCIAL DE USO ASISTENCIAL PARA MAYORES. TORREMOLINOS.

 

- PROYECTO DE ACTIVIDAD DE CONJUNTO RESIDENCIAL PARA MAYORES. CERRADO DE CALDERÓN.  MÁLAGA.

 

- RESTAURANTE  MONTANA. MALAGA (CPS,INTEGRACION DE RECURSOS S.L.)

 

- PROYECTO DE INSTALACIONES DE PISCINA CUBIERTA, SAUNA Y SPA DE SOLINCA. MÁLAGA .

 

- ESTUDIO DE MEDIDAS DE PROTECCIÓN CONTRA INCENDIOS Y APERTURA DE IKEA. CASTILLEJA DE LA CUESTA. SEVILLA.

 

- PROYECTO DE ACTIVIDAD Y MEDIDAS CORRECTORAS DEL CENTRO DE OCIO. CASTILLEJA DE LA CUESTA. SEVILLA.

 

- PROYECTO DE SOPORTACIÓN DE VIDEOPANTALLA EN EL CENTRO COMERCIAL PLAZA EBOLI. MADRID.

EQUIPO

CONTACTO

SPANISH

ENGLISH